Gepflegte Gewerbehalle im westlichen Gewerbegebiet von Kaufbeuren-Neugablonz VERKAUFT
Der Gewerbebau ist von einer namhaften Firma 1995 mit einem Satteldach errichtet worden. Dieser wurde mit einem weiteren Gewerbebau zusammengebaut, die Trennung hier erfolgte durch eine vorschriftsmäßige Brandwand.
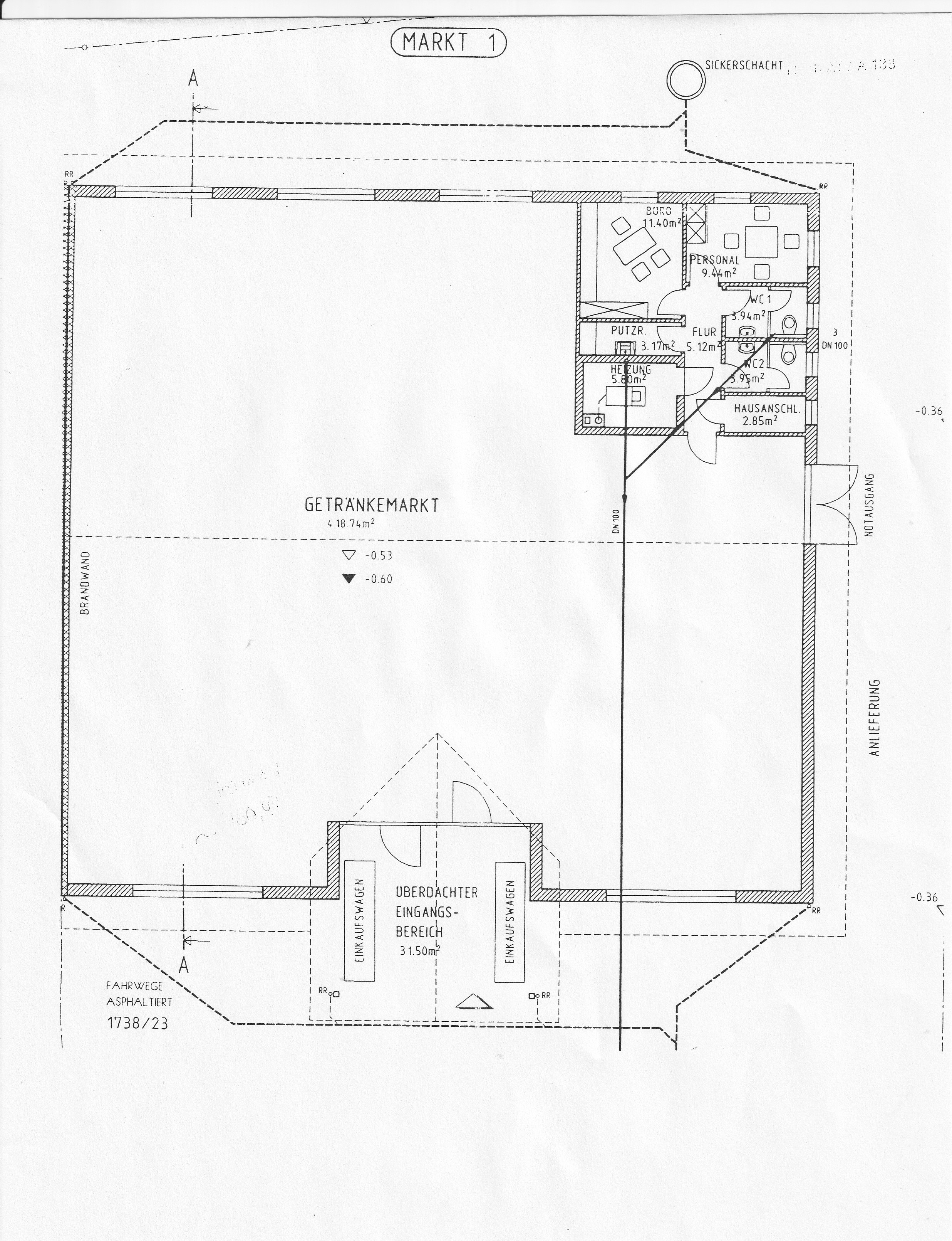
Über einen schönen Gauben-Artigen Eingang gelangt man in die Verkaufshalle mit zusätzlichem Lager. Fläche hier 418m²
Weiter als abgetrennter Bereich befindet sich im nördlichen Teil die Heizung, zwei getrennte Toiletten, Putz und Hauswirtschaftsraum, sowie Büro und Personalzimmer.
Die gesamte Gewerbefläche beträgt ca. 460 m²
Die Grundstückgröße 1587m²
Verkauft
| Objekt-Nr: | GEW 487 |
| Objekt: | Getränkemarkt in Kaufbeuren-Neugablonz |
| Lage: | Westliches Gewerbegebiet in Neugablonz |
| Grund: | 1.587 qm |
| Besonderheit: | 13-15 gepflasterte Stellplätze |
| Kaufpreis: |
Pflichtangaben der Energie-Einsparverordnung EnEV
| Ausweisart: |
Kontakt für dieses Objekt
Sie haben noch Fragen oder wollen einen Besichtigungstermin vereinbaren?
Hier die Kontaktdaten Ihres Ansprechpartners für dieses Objekt:
Dorothea Stegmann